Menu
Te koop: Hoekwoning Ds. J.A. Visserstraat 11 , Heerjansdam

Ds. J.A. Visserstraat 11 Heerjansdam

€ 495.000 kosten koper
Verkocht onder voorbehoud
Woonhuis - Eengezinswoning hoekwoning
Conditie
Bestaande bouw
Bouwperiode
1945-1959
Bouwjaar
1958
Dak woning
Zadeldak
Materiaal Dak
Pannen
Woonoppervlakte
122 m2
Inhoud
430 m3
Perceeloppervlakte
253 m2
Aantal kamers
5
Aantal slaapkamers
4
Aantal woonlagen
3
Verkoopprijs
€ 495.000 kosten koper
Status
Verkocht onder voorbehoud
Oplevering
In overleg
Energielabel
B
Verwarming
Cv-ketel, Vloerverwarming gedeeltelijk
Warm water
Cv-ketel
Cv-ketel
Remeha HR, eigendom (2023)
Garage
Vrijstaand steen
Berging / Schuur
vrijstaand hout
Voorzieningen
Elektra, Water
Ligging
Aan rustige weg
In woonwijk
Vrij uitzicht
Buitenruimte
Achtertuin, Voortuin, Zijtuin
Hoofd buitenruimte
Achtertuin
Ligging buitenruimte
Noord, West
Woonstijlen
Kindvriendelijk
Eigen parkeerplaats
Direct te betrekken
Huis met mogelijkheden
Rustig wonen
Met opslagruimte
Tuin met zon
Wij zijn vandaag telefonisch bereikbaar tot 21:00 uur
Ferry van Dijk 06-13236043
Vincent Mulder 06-24401778

Ds. J.A. Visserstraat 11, Heerjansdam

HOEKWONING XL | UITGEBOUWD | GARAGE & CARPORT | NOKVERHOGING MET DAKKAPELLEN | EIGEN OPRIT | ENERGIELABEL B | VRIJ UITZICHT | INSTAPKLAAR

Op zoek naar de volgende stap in jullie wooncarrière? Heb je behoefte aan ruimte, comfort en een instapklare woning voor het hele gezin? Dan is deze royale hoekwoning in het gezellige Heerjansdam absoluut het overwegen waard.

De woning is fors vergroot met een uitbouw op zowel de begane grond als de eerste verdieping. Ook de zolder is optimaal benut dankzij een nokverhoging en twee dakkapellen, waardoor een volwaardige extra verdieping is ontstaan met de mogelijkheid tot een vijfde slaapkamer.

Op de begane grond is een doorzon, lichte woonkamer met open keuken voorzien van een kookeiland en alle moderne inbouwapparatuur. Boven op de eerste verdieping bevinden zich drie slaapkamers en een moderne badkamer met inloopdouche, ligbad en tweede toilet. De zolderverdieping biedt een ruime voorzolder en een vierde slaapkamer met veel daglichtinval. Hier is eenvoudig een vijfde slaapkamer te realiseren.

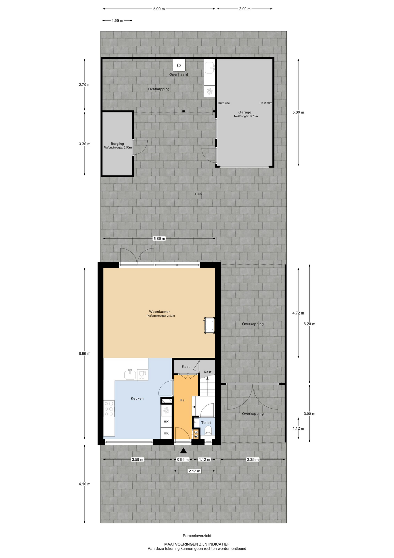
De woning ligt op een ruim bemeten perceel met een fraai aangelegde voor-, zij- en achtertuin. Je beschikt hier over: parkeren op eigen erf, een garage met een indrukwekkende nokhoogte van 3.70 m, een carport (ook geschikt voor een camper) en een overkapping en meerdere zitplekken in zon en schaduw. Daarnaast geniet je aan de voorzijde van een vrij uitzicht over een groenplantsoen met waterpartij, in een rustige en groene woonomgeving.

De woning is centraal gelegen in Heerjansdam, op korte afstand van voorzieningen zoals een supermarkt, basisscholen en sportfaciliteiten. Ook de Oude Maas, de Waal en het treinstation van Barendrecht zijn gemakkelijk bereikbaar, zowel met de fiets als met de auto.

Interesse? Neem vrijblijvend contact op met Home 4 You Makelaars voor een bezichtiging. We laten je graag alle mogelijkheden van deze ruime gezinswoning zien.

Indeling:

Begane grond:
Entree, hal met meterkast (tien groepen, twee aardlekschakelaars en twee krachtstroomaansluitingen), toiletruimte, trap-/kelderkast, vaste trap naar de eerste verdieping en toegang tot de woonkamer.
Toiletruimte, geheel betegeld, voorzien van hangend closet en klapraampje.
Woonkamer, (type) doorzon, voorzien van plavuizenvloer met vloerverwarming, uitbouw en openslaande deuren naar de achtertuin.
Keuken, open keuken uitgevoerd in het hoogglans taupe met hardstenen aanrechtblad en kookeiland, voorzien van de volgende inbouwapparatuur: inductie kookplaat, afzuigkap, koelkast, vriezer (7 lades), twee ovens, combimagnetron, vaatwasser en Quooker.

Eerste verdieping:
Overloop, met toegang tot drie slaapkamers, badkamer en vaste trap naar de zolderverdieping.
Slaapkamer I, gelegen aan de achterzijde, voorzien van pvc-laminaat en vloerverwarming die afzonderlijk regelbaar is.
Slaapkamer II, gelegen aan de voorzijde, voorzien van pvc-laminaat en vloerverwarming die afzonderlijk regelbaar is.
Slaapkamer III, gelegen aan de voorzijde, voorzien van pvc-laminaat en vloerverwarming die afzonderlijk regelbaar is
Badkamer, geheel betegeld, voorzien van inloopdouche, ligbad, tweede toilet, wastafelmeubel, designradiator, vloerverwarming die afzonderlijk regelbaar is en openslaand raam voor licht + ventilatie.

Zolderverdieping:
Voorzolder, met nokverhoging, aansluiting wasapparatuur, wastafel en toegang tot slaapkamer IV.
Slaapkamer IV, voorzien van twee dakkapellen met draai-/kiepramen en laminaatvloer.

Tuin:
De ruime achtertuin is georiënteerd op het noordwesten met altijd een plekje voor de zon of schaduw en beschikt over een afsluitbare achterom, elektrische zonnescherm, vrijstaande stenen garage, voorzien van elektra, wastafel en meterkast (acht groepen en hoofdschakelaar), vrijstaande houten berging en een heerlijke overkapping met keukenblok, elektra en wastafel. Tevens beschikt de zijtuin over een mogelijkheid tot parkeren op eigen erf, carport (vanwege de hoogte ook geschikt voor een camper) met buitenkraan en elektra.

Algemene info:

– Eigen grond;
– Energielabel B;
– Parkeren op eigen erf;
– Alarminstallatie aanwezig;
– Elektrische rolluiken en sunscreens aanwezig;
– De begane grond en eerste verdieping zijn uitgevoerd in een betonvloerconstructie met vloerverwarming. De zolderverdieping heeft een houten vloerconstructie.

Koopovereenkomst:
Bij de verkoop zal er een standaard koopovereenkomst worden gehanteerd, vastgesteld door NVM, VastgoedPRO, VBO Makelaar, de Consumentenbond en Vereniging Eigen Huis. Bij woningen welke ouder zijn dan 20 jaar, worden de volgende clausules opgenomen in de koopovereenkomst:
– Asbestclausule;
– Ouderdomsclausule.

Koopt u de woning zonder voorbehoud van financiering? Dan zullen wij een termijn hanteren van 14 dagen na het opstellen van de koopovereenkomst voor het storten van de bankgarantie/waarborgsom.

Voor de afmetingen verwijzen wij je graag naar de digitale plattegronden. Alle genoemde afmetingen / oppervlakten in deze informatie zijn indicatief.

De informatie is met de nodige zorg vastgesteld. Aan deze gegevens kunnen echter geen rechten worden ontleend en zijn wijzigingen voorbehouden.

Plattegrond

Plattegrond Hoekwoning Ds. J.A. Visserstraat 11 , Heerjansdam
Plattegrond Hoekwoning Ds. J.A. Visserstraat 11 , Heerjansdam
Plattegrond Hoekwoning Ds. J.A. Visserstraat 11 , Heerjansdam
Plattegrond Hoekwoning Ds. J.A. Visserstraat 11 , Heerjansdam
Plattegrond Hoekwoning Ds. J.A. Visserstraat 11 , Heerjansdam
Plattegrond Hoekwoning Ds. J.A. Visserstraat 11 , Heerjansdam

Kaart

Streetview

Bezichtiging plannen? Neem contact op!
Contact X
  • DD slash MM slash JJJJ
  • DD slash MM slash JJJJ
  • Dit veld is bedoeld voor validatiedoeleinden en moet niet worden gewijzigd.